3 Sterne Unterkunft
Ferienwohnung Achter de Dünen in Borkum
Borkum
Ferienwohnung
8.7
Fabelhaft
Die Unterkunft Achter de Dünen in Borkum bietet Übernachtungsmöglichkeiten mit kostenlosem WLAN und ist 2,6 km von Wellness- und Erlebnisbad Gezeitenland, 5,6 km von Hafen Borkum und 5,8 km von Feuerschiff Borkumriff IV entfernt. 600 m von Südbad entfernt gelegen bietet die Unterkunft eine Terrasse und einen kostenlosen Privatparkplatz.
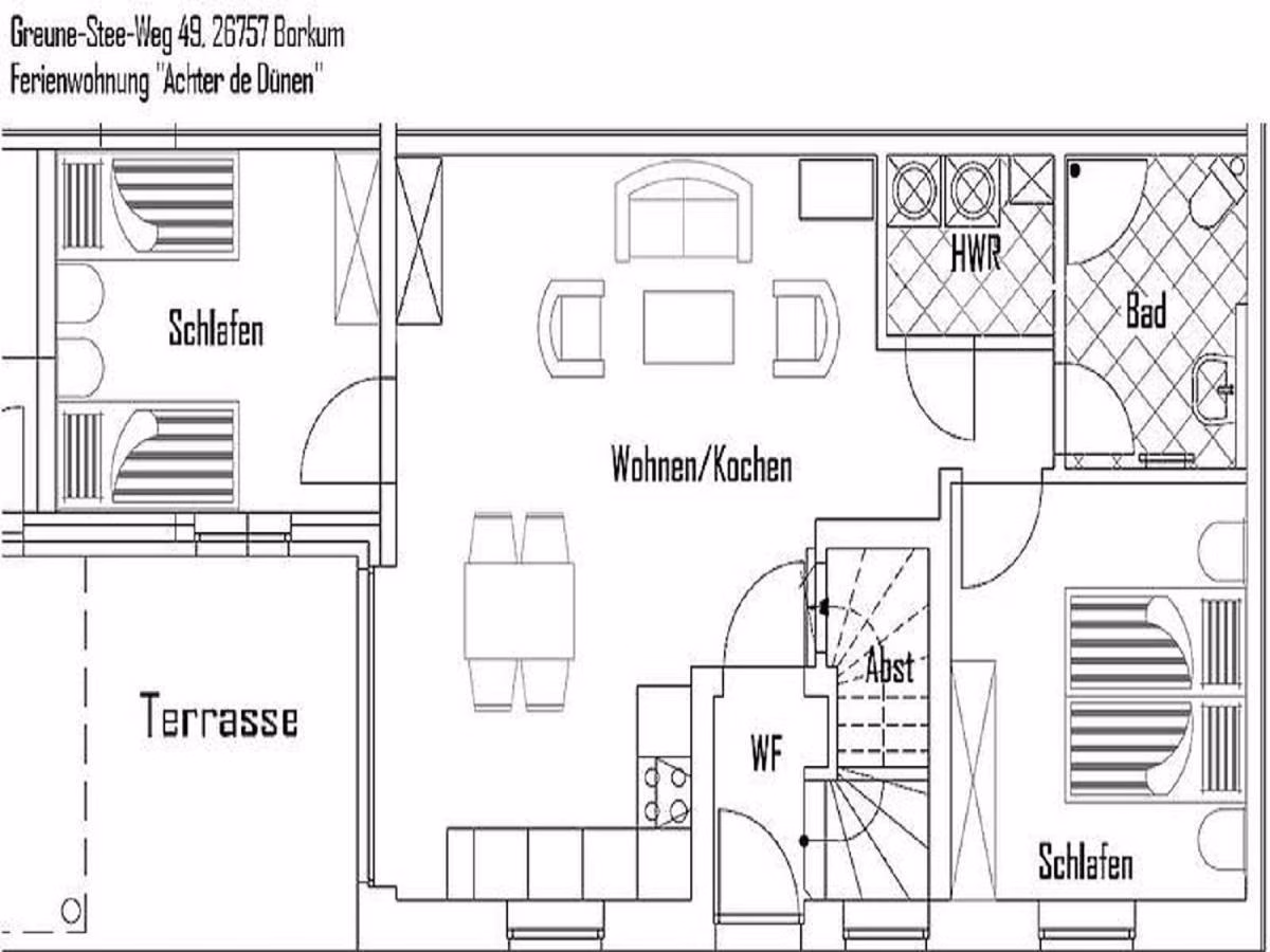
Diese Ferienwohnung ist versehen mit 2 Schlafzimmern, Flachbild-TV und einer Küchenzeile.
Borkum Yachthafen liegt 5,8 km von der Unterkunft Achter de Dünen entfernt.
Borkum Yachthafen liegt 5,8 km von der Unterkunft Achter de Dünen entfernt.
Die Unterkunft
- Größe: 45 m²
- Schlafzimmer 1: 1 Doppelbett
- Schlafzimmer 2: 2 Einzelbetten
- Badezimmer: 1
The apartment's kitchenette is available for cooking and storing food. Boasting a terrace, this apartment also offers heating and a flat-screen TV. The unit has 3 beds.



Unterkunftsausstattung
- Kostenloses WLAN
- Parkplatz inbegriffen
- Terrasse
Lage und Umgebung
26757 Borkum, Deutschland
Bewertungen
Sauberkeit
Komfort
Einrichtungen
Lage
Service
Preis-Leistung
Lust auf unvergessliche Urlaubsmomente?
Wichtige Informationen
Personen
Reisezeitraum
Preis anzeigen? Wähle einen Zeitraum.
